Bibliothek Goethe-Institut Zentrale in München
Umbau und Neugestaltung der Bibliothek des Goethe-Instituts in der Zentrale in München.
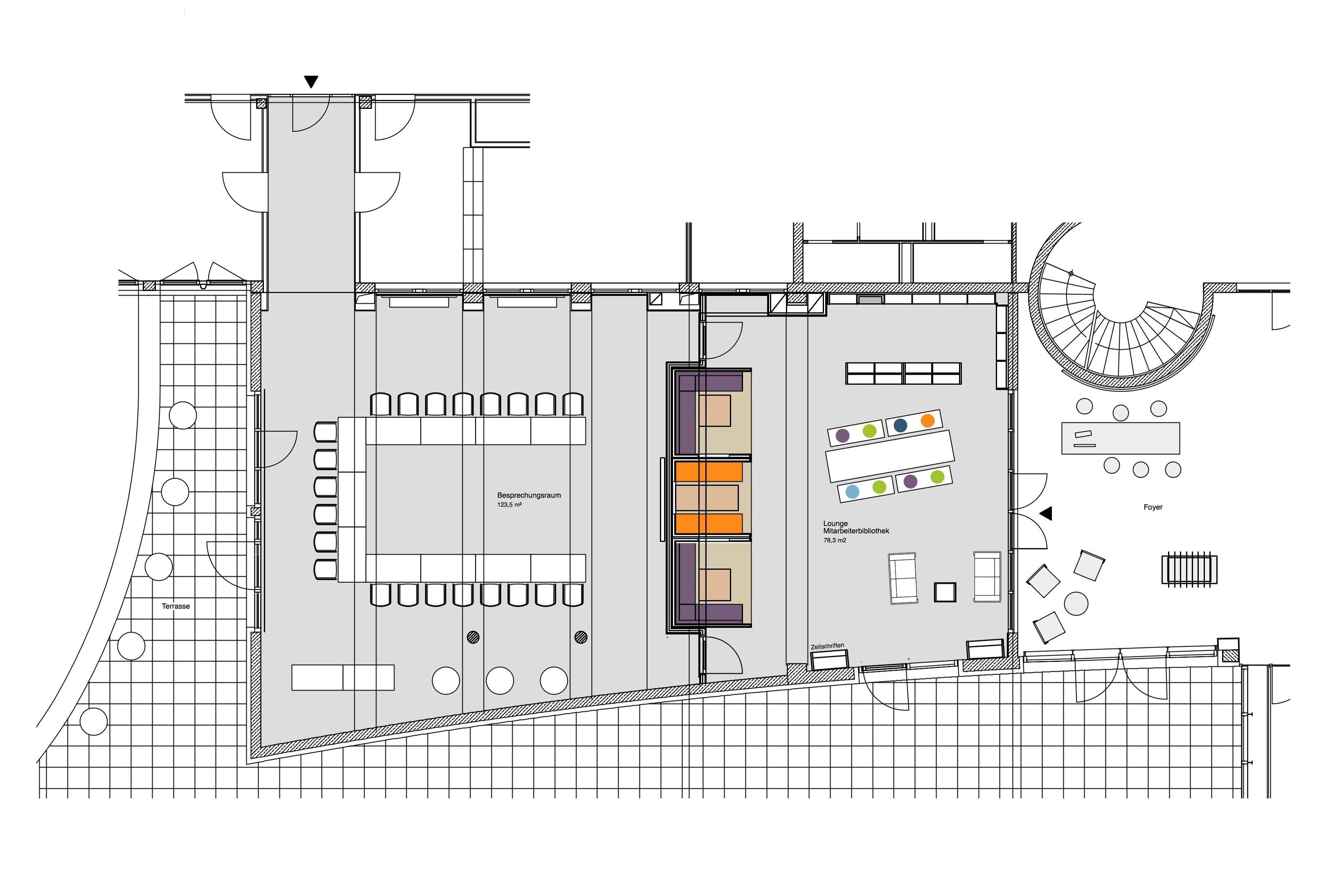
Die Nutzung der bestehenden Mitarbeiterbibliothek war aufgrund der Doppelfunktion als Besprechungsraum und Bibliothek problematisch, weil beide Funktionen nicht optimal erfüllt werden konnten. Daher wurde der Raum durch eine Trennwand in zwei Funktionsbereiche geteilt. Der hohe Raumbereich wurde als Bibliothek und Lounge mit Besprechungsnischen und Arbeitstischen ausgebaut und ist jederzeit für alle Mitarbeiter zugänglich. Der rückseitige Bereich wurde als Konferenz- und Besprechungsraum für bis zu 30 Personen umgebaut. Beide Räume sind über neu in die Glasfassade eingefügte Türen an eine große Dachterrasse angebunden.
- Standort
- München
- Auftraggeber
- Goethe-Institut e.V. München
- Bauzeit
- 2017
- Leistungen
- Generalplanerleistungen Lph. 1 - 8
- Lichtplanung
- Bernd König Lichtplaner, München






