Espressobar im Hauptbahnhof München
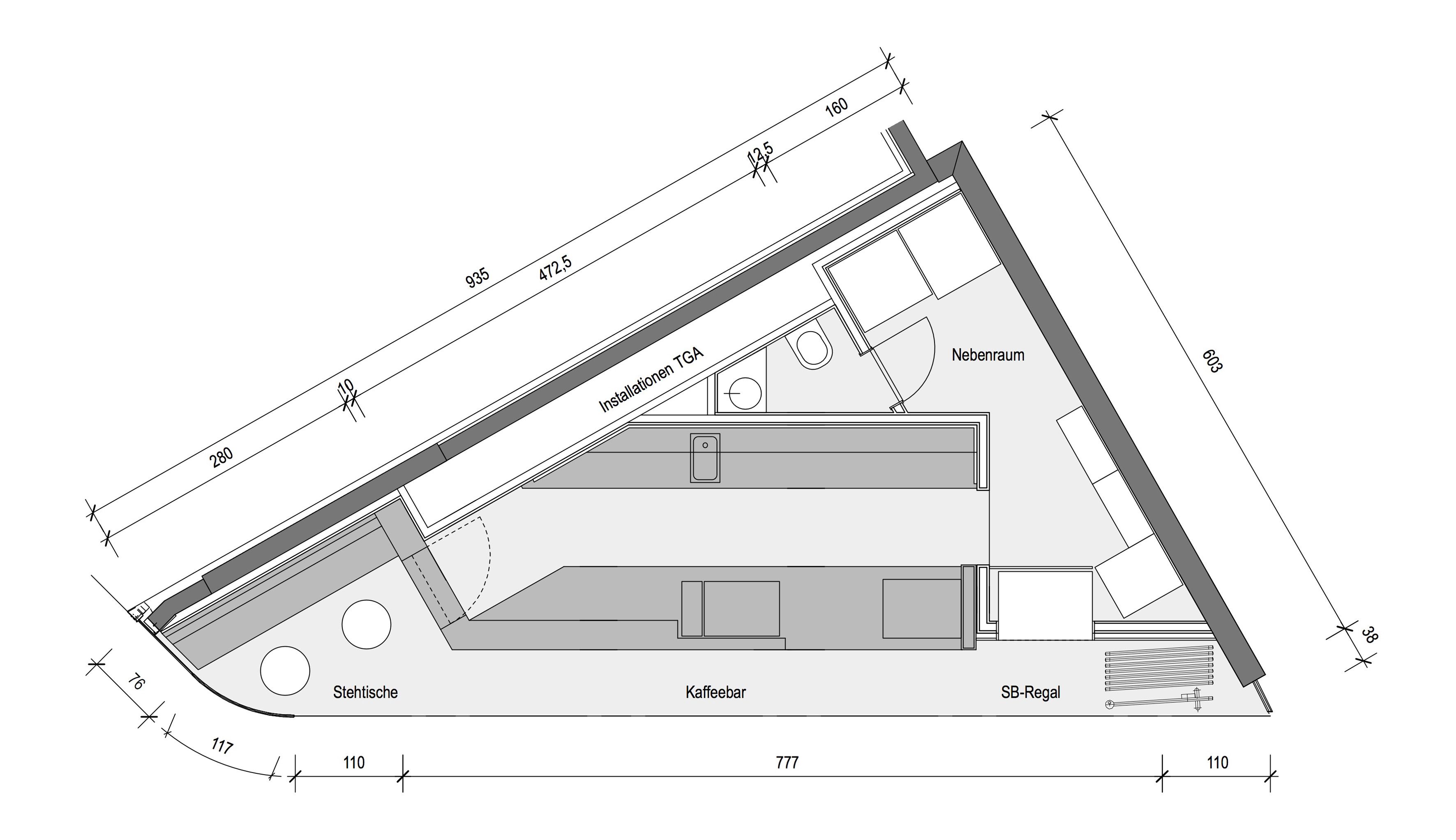
Im Zuge der Neugestaltung des Untergeschosses im Hauptbahnhof München wurde auf engstem Raum eine kleine Espressobar für vorbeieilende Reisende eingerichtet.
Eine gläserne Fassade mit Schiebeflügeln öffnet die Bar zur belebten Fußgängerpassage des Geschosses. An einer parallel zur Fassade angeordneten Theke werden italienische Kaffeespezialitäten angeboten. Dazu werden frische Backwaren in einer Thekenvitrine und Getränke, Snacks etc. in einem Kühlregal zur Selbstbedienung präsentiert. Die umfangreichen Brandschutzeinrichtungen und technische Gastronomieausstattungen wurden unsichtbar in den Ausbau integriert.
Fotos: Stefan Müller-Naumann, München
- Standort
- München
- Auftraggeber
- Oscar Camerlingo, München
- Leistungen
- Lph. 1 - 9






