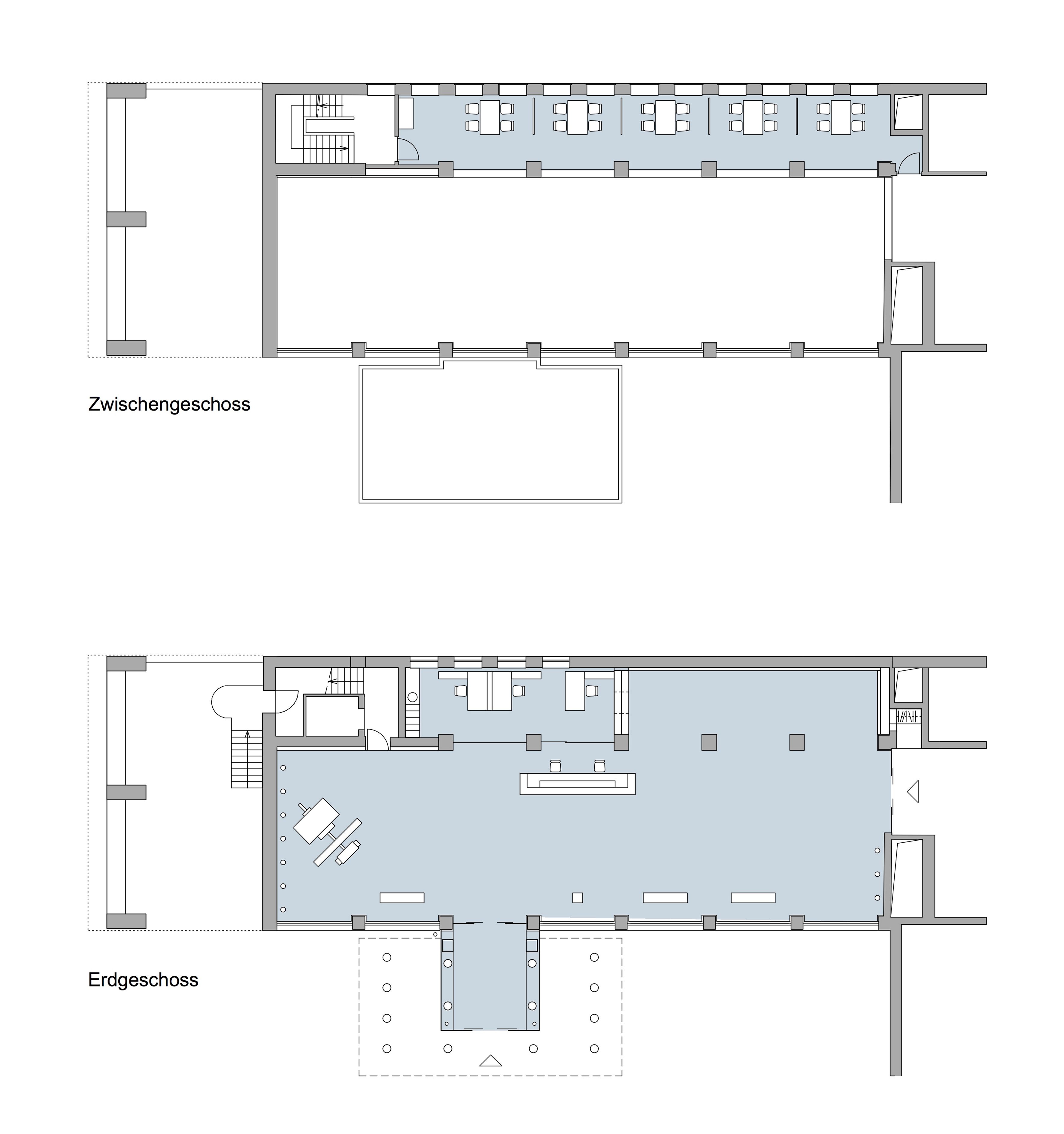
Umbau und Neugestaltung der zweigeschossigen Eingangshalle des "Diesel Tower“ in Augsburg aus dem Jahr 1963. Die Unternehmensleitung wünschte sich ein zeitgemäßes und modernes, der Corporate Identity entsprechendes neues Erscheinungsbild. Ein Windfang mit umgebautem Vordach und Einhausung als Ganzglaskonstruktion bildet einen transparenten einladenden Eingang in die Halle. Um den Raum als Ganzes zur Geltung zu bringen wurden alle massiven Zwischenwände entfernt und mit transparentem Glas ersetzt. Eine silbern schimmernde Metalldecke reflektiert den hellen Granit-Bodenbelag und verbessert die Akustik. In der Halle dominiert ein historischer Schiff-Diesel-Motor aus der Zeit seiner Erfindung um 1897 und vermittelt dem Besucher die traditionsreiche Entwicklung des Unternehmens im Schiffsmotorenbau.
Eine in der Rückwand integrierte leuchtende Bildwand visualisiert die aktuellen Aktivitäten des weltweit agierenden Unternehmens. Im Zwischengeschoss mit Sichtverbindung zur Halle sind variabel teilbare Besprechungsnischen und eine Kaffeeküche untergebracht.
Fotos: Hans Jürgen Staudt, Ottobrunn
- Standort
- Augsburg
- Auftraggeber
- MAN Diesel & Turbo SE, Augsburg
- Leistungen
- Lph. 1 - 9
- Lichtplanung
- Lichtlabor Bartenbach, Innsbruck








