Historisches Zweifamilienhaus in München
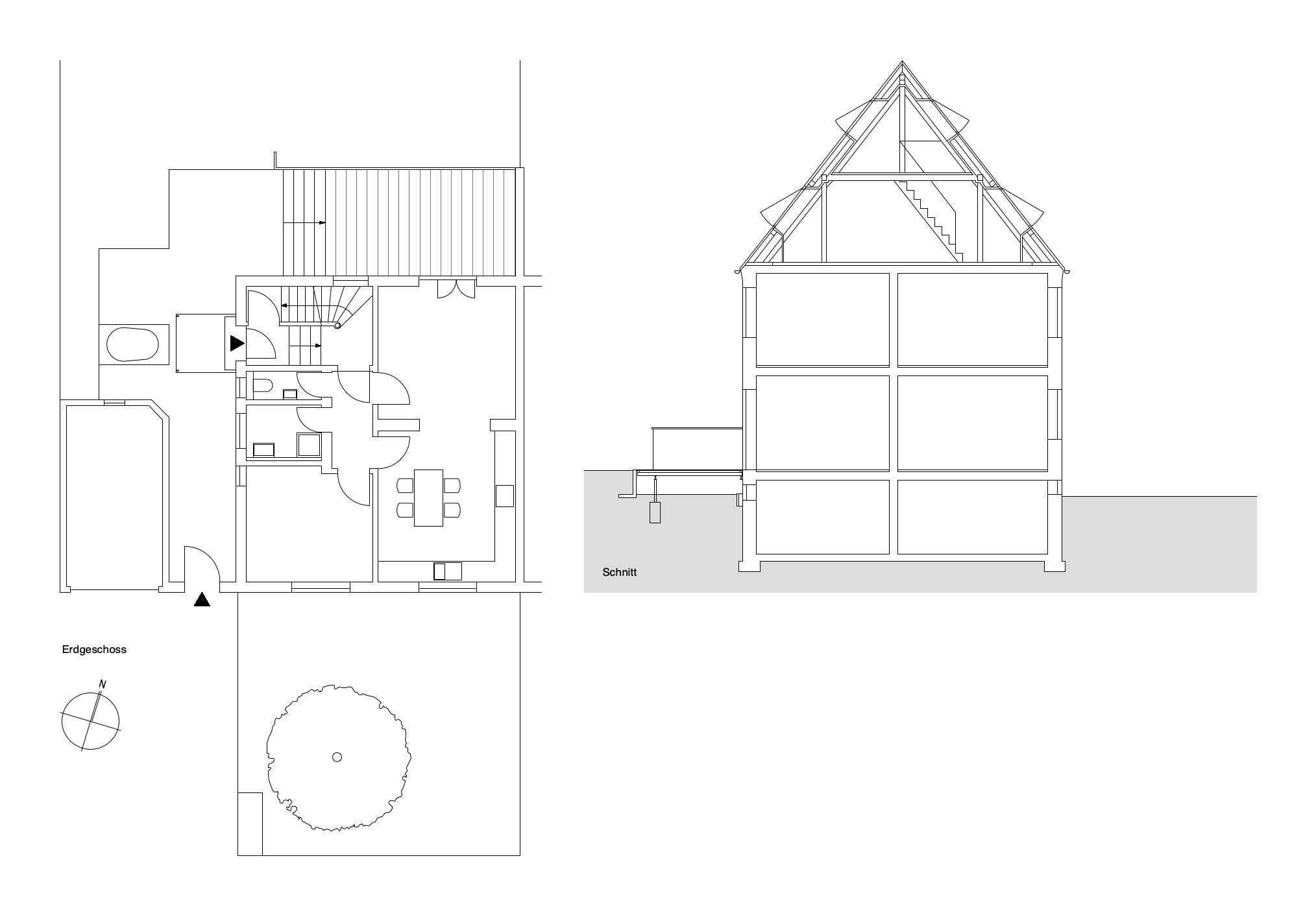
Das historische Wohnhaus, erbaut Ende der 20er Jahre wurde vollständig unter Erhalt der vorhandenen historischen Bauteile saniert. Das bisher nicht genutzte Dachgeschoß wurde zu einer Einliegerwohnung mit Galerie und Dachloggia ausgebaut. Die gesamte Haustechnik wurde gemäß heutigem Stand der Technik erneuert. Die Beheizung des gesamten Gebäudes erfolgt über eine Luft-Wasser-Wärmepumpe in Verbindung mit einer neu eingebauten Fußbodenheizung.
- Standort
- München
- Auftraggeber
- Provinzialat der Armen Schulschwestern v.U.L.Fr. München
- Bauzeit
- 2023
- Bauvolumen
Wohn- und Nutzfläche 206 m2
- Leistungen
- Lph. 1 - 9










